
Two Storey Side Extension
Within Conservation Area


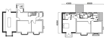
Design Proposal
The scheme was developed as a two-storey side extension and external upgrade, carefully designed to enhance the property while remaining sympathetic to its surroundings.
The proposal maintains the existing proportions and roof form, ensuring the extension integrates seamlessly with the original dwelling. Internally, the layout was improved to better suit modern family living, while externally the design introduces a more refined and contemporary finish.
The development also included the relocation of the existing garage, improved site layout, and enhancements to the front boundary treatment, creating a more functional and visually cohesive property.


Planning Outcome
Planning approval was successfully secured following a considered design process and detailed supporting documentation.
The scheme demonstrates that, even within highly constrained environments such as conservation areas, it is possible to achieve modern, high-quality design solutions when approached correctly. Key elements such as contemporary cladding, upgraded windows, and sustainability features were all accepted as part of the final approved proposal.
Affordable Architectural were instructed by a private family client to design and secure planning approval for a two-storey extension and full refurbishment to an existing dwelling located within the Malvern Wells Conservation Area. The objective was to create a high-quality, long-term family home, maximising internal space and modernising the appearance while remaining fully compliant with strict planning and heritage requirements.
Materials & Architectural Approach
Material selection was a key factor in achieving planning approval within the conservation area.
The ground floor remains consistent with the existing property, finished in red facing brick, while the first floor introduces vertical smoked oak-style cladding, providing a modern yet complementary contrast. All windows were upgraded to anthracite grey units, delivering a high-end appearance while remaining appropriate in tone and scale.
This approach allowed the property to be visually enhanced without detracting from the character of the surrounding area




These drawings are redacted so some information may be missing.
Sustainability & Environmental Strategy
The project incorporates a range of sustainability features, designed to improve long-term performance without compromising the external appearance.
These include the installation of solar photovoltaic panels, an underground greywater recycling system, and the use of water-efficient fixtures and improved insulation throughout the property.
Together, these elements significantly reduce the environmental impact of the dwelling while aligning with current planning and building standards




Key Constraints & Planning Considerations
The site presented several challenges due to its location within a designated conservation area.
Careful consideration was required in relation to visual impact, material selection, and overall scale, alongside the need to respect the established character of the surrounding properties. The presence of nearby heritage assets and the expectations of the local authority added further complexity to the planning process.
Despite these constraints, the design was developed to ensure the proposal would have a neutral to positive impact on the streetscape, while still delivering a meaningful upgrade to the property.
Project Outcome
The final design delivers a high-quality family home, combining improved internal space, modern aesthetics, and enhanced sustainability.
This project highlights our ability to navigate complex planning conditions, balance design ambition with policy requirements, and achieve successful outcomes where constraints are significant.











