
Fit out


Scope of Works
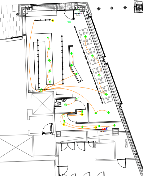
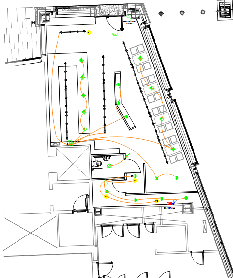
Our role focused on the technical design and compliance stage, producing a coordinated drawing package to satisfy the requirements of both the landlord and the building management team prior to construction.
The scope included:
Detailed layout and fit-out drawings
Coordination of M&E services, including extraction
Integration of fire alarm and sprinkler systems
Technical detailing suitable for landlord and management approval
All drawings were prepared to align with the approved design intent while ensuring compliance with building, safety, and operational requirements.


Outcome
The technical drawing package successfully supported landlord and building management approval, enabling the project to proceed to construction. The coffee shop has since been successfully completed and opened to the public.
Service Provided: Technical drawings (white label)
Project Value: Approx. £100,000
Location: City of London
Date: May 2025
Affordable Architectural were appointed via a white label service on behalf of a specialist fit-out contractor to deliver detailed technical drawings for a new coffee shop fit-out in a central City of London location.
Design & Coordination
The project required close technical coordination to ensure the proposed café layout, services, and equipment were fully integrated within the constraints of an existing commercial building. Particular attention was given to service routing, compliance, and constructability, supporting a smooth approval process ahead of site works.











